繁体中文
加入收藏
首页
公司概况
订货须知
产品展示
公司动态
资质荣誉
人才招聘
联系我们
公司简介
|
历史资料
|
用户意见
公司声明
|
产品型号编号方法
|
半封闭和全封闭罩壳说明
公司新闻
|
行业动态
|
每日资讯
资质
|
国家专利
|
荣誉
|
检测报告
人才理念
|
岗位需求
修改资料
|
定单查询
|
会员留言
产品搜索
产品目录
一、电能计量联合接线盒系列
二、试验接线盒系列
三、计量箱进线出线分线盒
1、单相进线分线盒
2、三相三线进线分线盒
3、三相四线进线分线盒
4、一进多出分线盒
5、带断开点单极进线盒
6、带断开点单极进线并线盒
7、户号可标志出线端子
四、计量箱进出线分线母排盒
1、单相进线分线盒
2、三相三线进线分线盒
3、三相四线进线分线盒
4、一进多出分线盒
5、带断开点单极进线盒
6、带断开点单极进线并线盒
7、户号可标志出线端子
五、计量箱接地分线盒
1、进线接地分线盒
2、出线接地分线盒
六、计量箱进出分线零排盒
1、进线接地分线盒
2、出线接地分线盒
七、计量箱数据采集接线盒
八、计量箱通讯端子
九、现场终端专用接线盒
十、开关分线端子
十一、断路器分线端子
十二、电能表挂表架
十三、穿孔导线板
十四、其它产品
当前位置:
网站首页
>
产品展示
三、计量箱进线出线分线盒
>>
3、三相四线进线分线盒
>> 三相四线四进四出
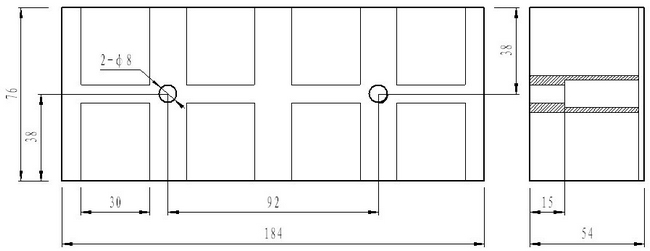
产品名称: 三相四线四进四出 产品型号:TC-2504/1型 产品规格:250/95/4+4×95 订货号:200025
外形及安装尺寸图:
点击数:102 录入时间:2012-9-17 【
打印此页
】 【
关闭
】
公司名称:海盐通用电气有限公司企业网站 地址:浙江省嘉兴市海盐县望海街道正华路1号 邮 编:314300
Email:ty@hytydq.com
浙ICP备15029399号